about the service
I take the time to understand the brief and to work within each client’s restrictions. I aspire to deliver considered, thoughtful designs, tailored to each clients’ individual needs to achieve their dream homes. As a qualified draftswoman I can take the project from concept design stage, through hand drawing of plans, and onto council submission, should a DA or CDC be required. I offer on site consulting on non-structural design, consulting with engineers, surveyors, builders and various trades.
detail drawings

DA submission plan 
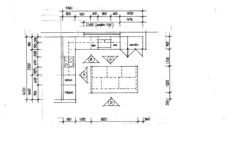
kitchen plan 
kitchen electrical plan 
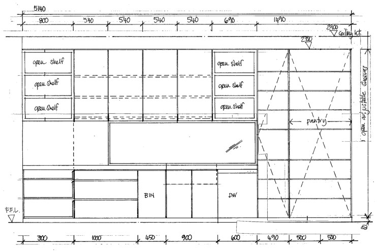
kitchen elevation 
wardrobe and desk elevation 
bathroom electrical plan